Real Estate Appraiser
what we do
Appraisals and Floorplans for Commercial and Residential real estate
A real estate appraisal is like taking a snapshot of a property to figure out how much it’s worth. Imagine you’re trying to understand the value of your real estate, and you ask an unbiased friend how much they think it’s worth. We consider things like where the property is located, what type is it, and what is the purpose of the report. A real estate appraiser visits the property, analyzes the size, condition, features, and compares it to similar properties that have recently sold nearby. Then, they use all that info to come up with an educated guess about how much the property could sell for in the subject’s market area. It’s crucial because it helps buyers, sellers, lenders, and insurers understand the value of the property they’re dealing with.
Learn More
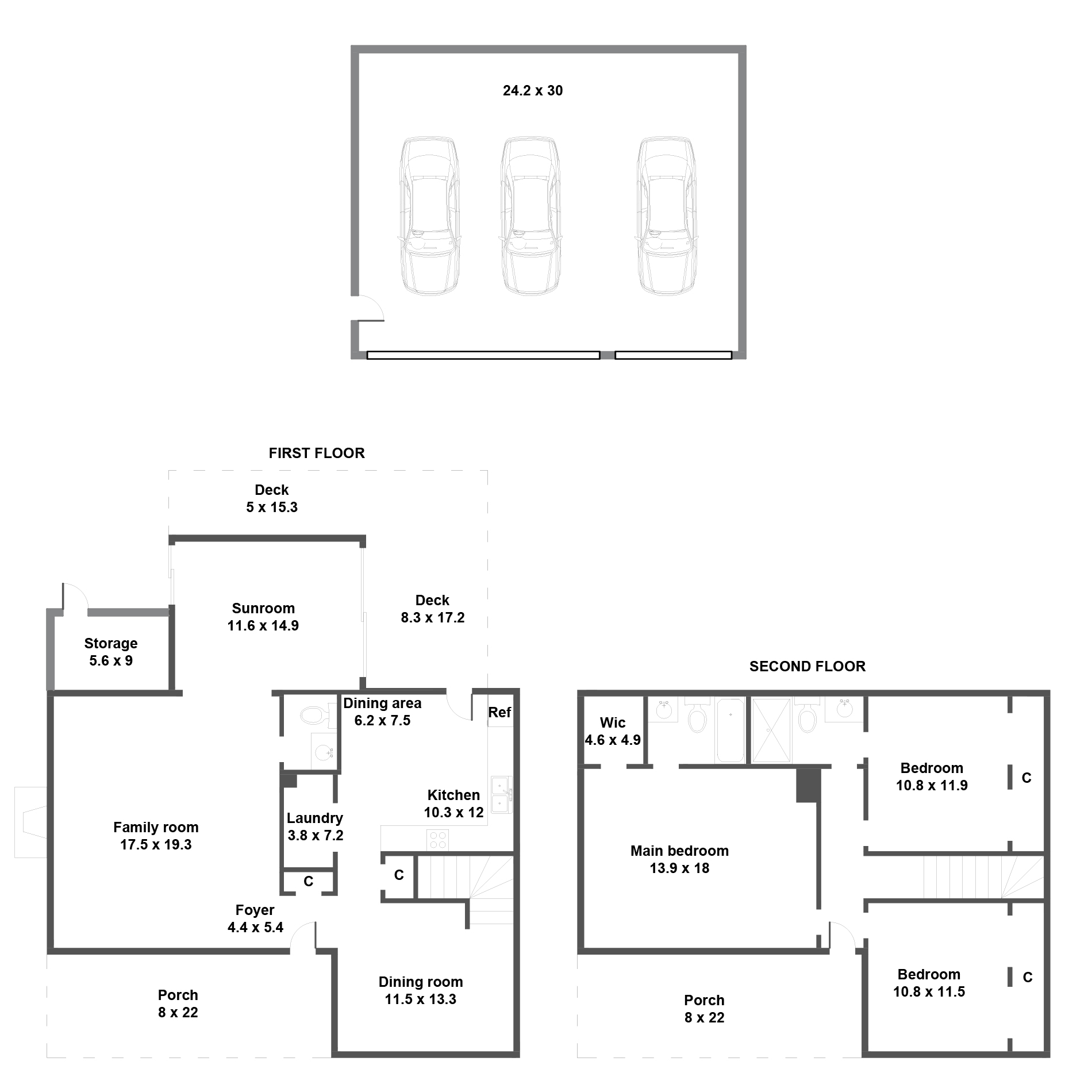
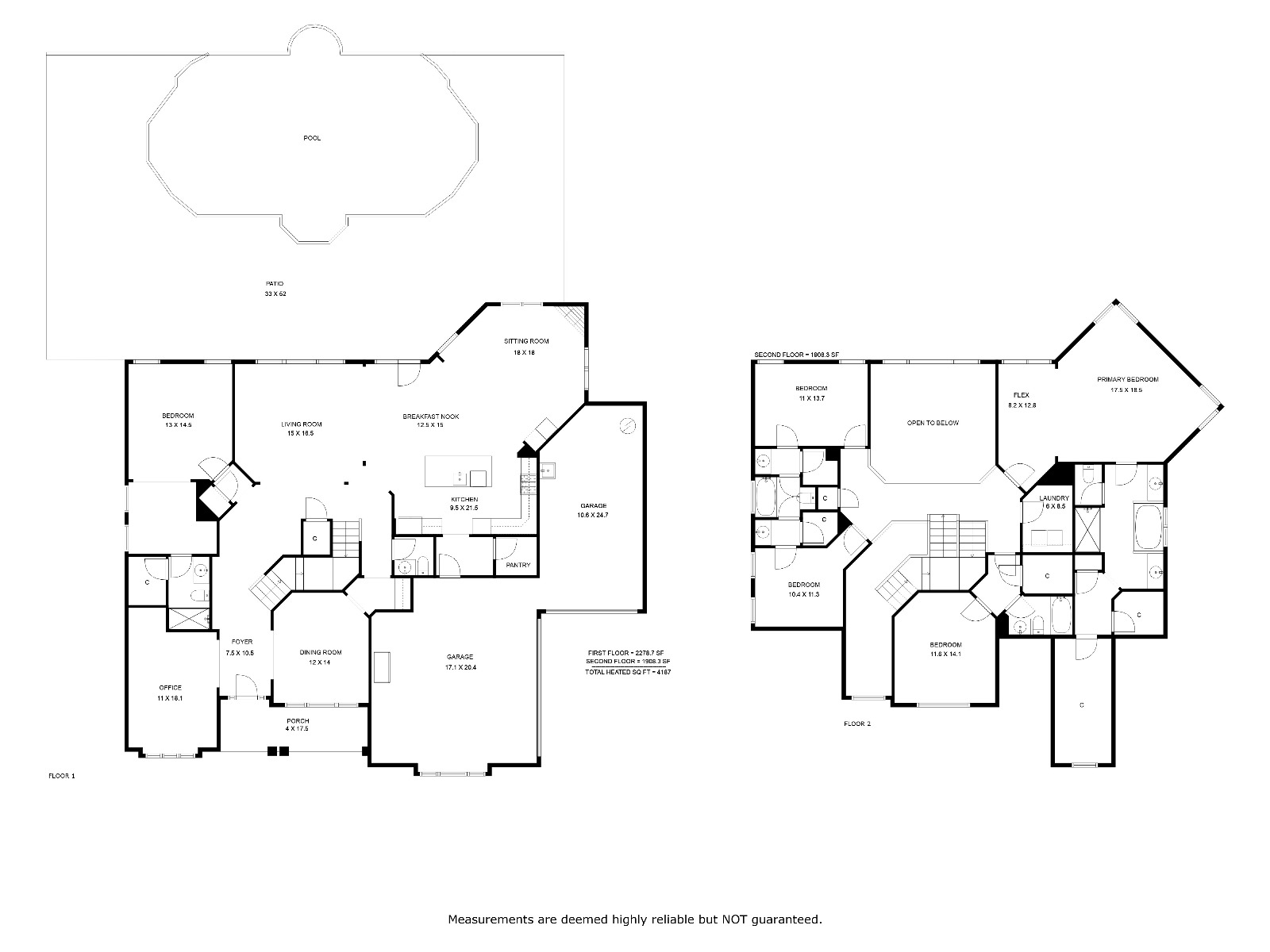
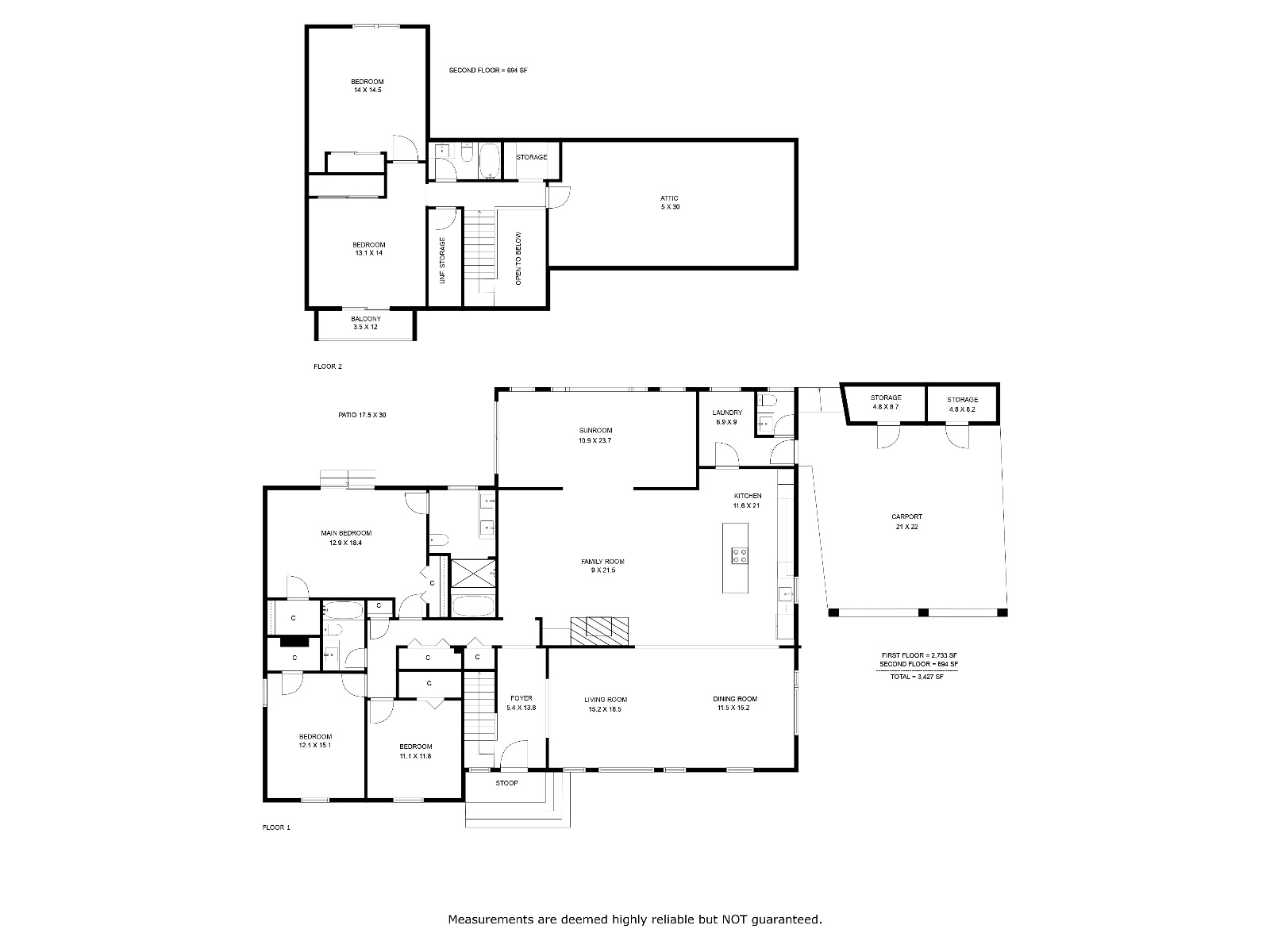
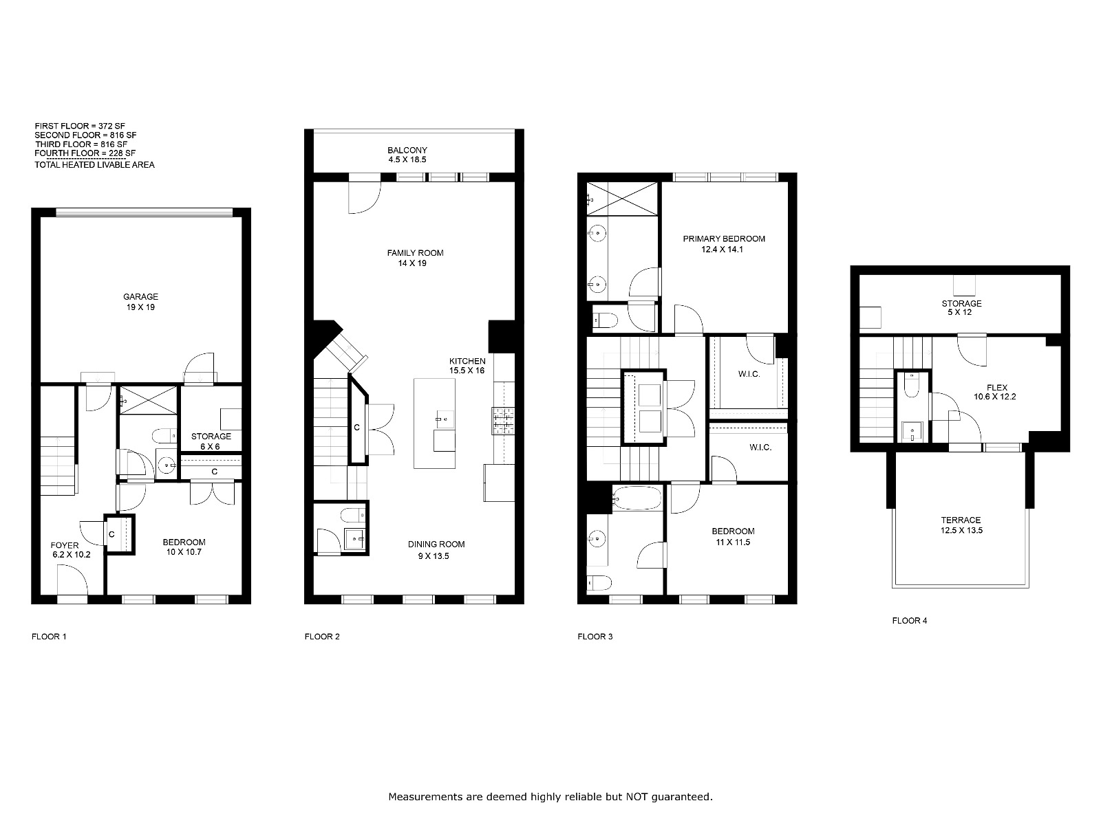
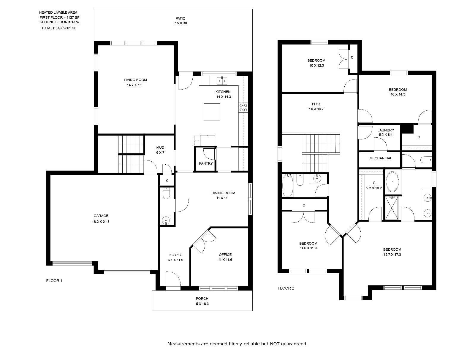
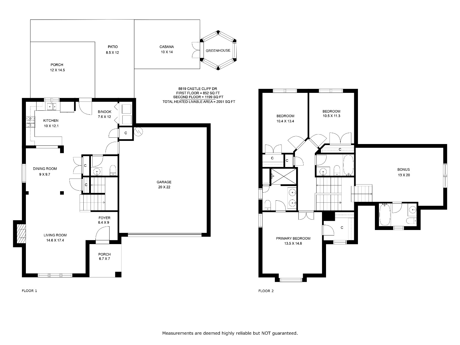
When Realtors list homes for sale, they are required by the NCREC to verify the sq ft of the property. Some measure the homes themselves, others hire our trusted inspectors. We are your friendly, measurement experts who use digital technologies to verify every single sq ft. Our professional floorplans get delivered to you within 24 hours of inspecting the property. You get peace of mind.
Learn More#Charlotte
but, we cover the Carolinas
Saimir "Sai" Ogranaja
Commercial and Residential real estate appraiser as well as Network Charlotte CEO
The Last 20 years have been spent either appraising, measuring or photographing residential homes, commercial buildings, hotels and apartments.
testimonials
Floor plan Gallery











